Фасада на стената на прозореца
Описание
Технически параметри
Фасада на стената на прозореца
За фасадата на стената на прозореца
A Фасада на стената на прозорецае неструктурна външна строителна система, която се състои предимно от големи стъклени панели (прозорци), поддържани от лека система за рамкиране, обикновено алуминиеви или стоманени . За разлика от стените на завесите, разчитайки на пода на пода за бетонните плочи на сградата, разчитайки на пода на пода за поддръжка {2 .
Основни характеристики на фасадите на стената на прозореца:
- Основни неща:Алуминиевата сплав с тежко натоварване (основните рамки са плътни 2 . с дебелина 0 мм-изградена жилава), сдвоени с високоефективна стъкло.
- Избор на стъкло:Изберете дебелината си: 6 мм, 8 мм, 10 мм или 12 мм . Опции: Засилено (единично/двойно), ламинирано или супер ефективно ниско-E стъкло .
- Алуминиева сила (темперамент):Използваме T3 до T8 степени - което означава, че е силен, но работоспособно за вашите дизайни .
- Доказано качество (certs):Подкрепен от ISO9001, CQC, Saiglobal, AS2047 - отговаря на международните показатели .
- Напълно обичай:Нуждаете се от конкретна дължина, форма, крива? Готово . можем дори да добавим вашето лого или графика за опаковане на опаковки .
Стената на прозореца срещу . Завесна стена:
|
Функция |
Стена на прозореца |
Завесна стена |
|
Инсталация |
Плоча до наклона, в рамките на пода на пода |
Окачени от конструкцията на сградата, обхващаща няколко етажа |
|
Структурна роля |
Не натоварване |
Нередоволно носене, но самоподдържане |
|
Водна и въздушна бариера |
Разчита на детайла на плочата |
Независима, непрекъсната бариерна система |
|
Разходи |
По -ниска (по -проста инсталация) |
По -високо (по -сложно инженерство) |
|
Термични показатели |
Може да бъде по -малко ефективен поради връзките на плочите |
Обикновено по -добре поради непрекъсната изолация |
Приложения:
- Офис кули (висок и среден ръст)
- Луксозни апартаменти и апартаменти
- Хотели и курорти
- Разработки със смесена употреба (търговия на дребно по-долу, офиси/резиденции по-горе)
- Университетски сгради и болници
- Търговски центрове
Предимства:
✔ По -бърза инсталация
✔ По -ниски материални разходи
✔ По -леко тегло от някои стени на завесата
✔ Позволява конструкция на етаж по етаж
Неща, които трябва да имате предвид:
- Инженерингът е ключов:Нуждае се от правилни структурни калци и безпроблемен интеграционен дизайн с изграждането на рамката . Не пропускайте това!
- Водата е подла:Дизайнът на системата трябва да има ефективни скрити дренажни пътеки .
- Инсталационен екипажВъпроси: Нуждае се от опитни екипажи, които познават тази специфична система отвътре .
- Материали се движат:Дизайнът трябва да позволи разширяване/свиване на алуминия и стъклото с температурни промени .
- Подробности в ръбовете:Как се свързва с покриви, стени и панели за спандрел, се нуждае от внимателно внимание .
- Прилагат се местни правила:Винаги спазвайте строителните кодове, специфични за местоположението на вашия проект .
Как работи:
Представете решетка, направена от вертикални алуминиеви стълбове (mullions) и хоризонтални пръти (трансоми) . Големите стъклени панели седят сигурно в тази решетка, използвайки специални табели за налягане и уплътнения . Целият монтаж се котва директно към бетонните краища на сградата на всяко ниво .} е проектиран STRATLY - HIDDEN Мина покрай печатите, поддържайки нещата сухи .
Случай на проекта Guangya:Хонконгски музей на изкуствата
Продукт:Стена на стената и завесата на прозореца
Район: 5000м²

Спецификация на продукта
| Номер на модела | Система за стена на GYA100 серия | Дължина | Персонализиран |
| Място на произход | Foshan Guangdong Китай | Алуминиева дебелина | Дебелина на стената на основния профил 2,0 мм |
| Материал | Алуминиева сплав / стъкло | Стъкло | 6/8/10 / 12 мм, едно закалено стъкло / ламинирано стъкло / двойно остъкляващо стъкло / ниско стъкло |
| Темперамент | T3 - T8 | Сертификат | ISO9001 CQC Saiglobal AS2047 |
| Приложение | Подходящ за различни видове сгради | Персонализиране | Лого / опаковки / графики |
| Форма | Като заявка | Подробности за опаковката | Pear Cotton to Interleaf Each into Small Bundles. Pack in Crystal Plastic Bag. Wood Bar to Fix into Master Bundles. Load on A Stee Track. Loading in Container by Forklift. |
| Сплав или не | Сплав | Срок на доставка | 15 - 30 дни |
| Услуга за обработка | Огъване, деколтиране, заваряване, пробиване, рязане |
Функция и приложение
Тази система е първата линия на отбраната и комфорт създател на вашата сграда:
- Поддържа времето навън:Спира дъжд и вятър от промъкване в (страхотна хидроизолация и въздушна стегнатост) .
- Спестява енергия:Сериозно намалява загубата/усилването на топлината (ниска U-стойност), намалявайки тези HVAC сметки .
- Успокоява нещата:Действа като звукова бариера срещу уличния шум .
- Остава силен:Борави с налягането на вятъра и прехвърля натоварвания безопасно към строителната конструкция .
- Наводнения със светлина:Максимизира естествената дневна светлина, създавайки страхотни ярки пространства .
- Изглежда рязко:Доставя този чист, модерен, безпроблемен стъклен външен вид Архитекти любов .
Защо има значение:
Получаването на фасадата е критично . GYA100 не е просто доста стъкло; Това е основната бариера, защитаваща сградата, контролиране на използването на енергия, определяне на комфорта и осигуряване на дългосрочна производителност и стойност . Изборът на здрава, сертифицирана система като нашата е интелигентна инвестиция .

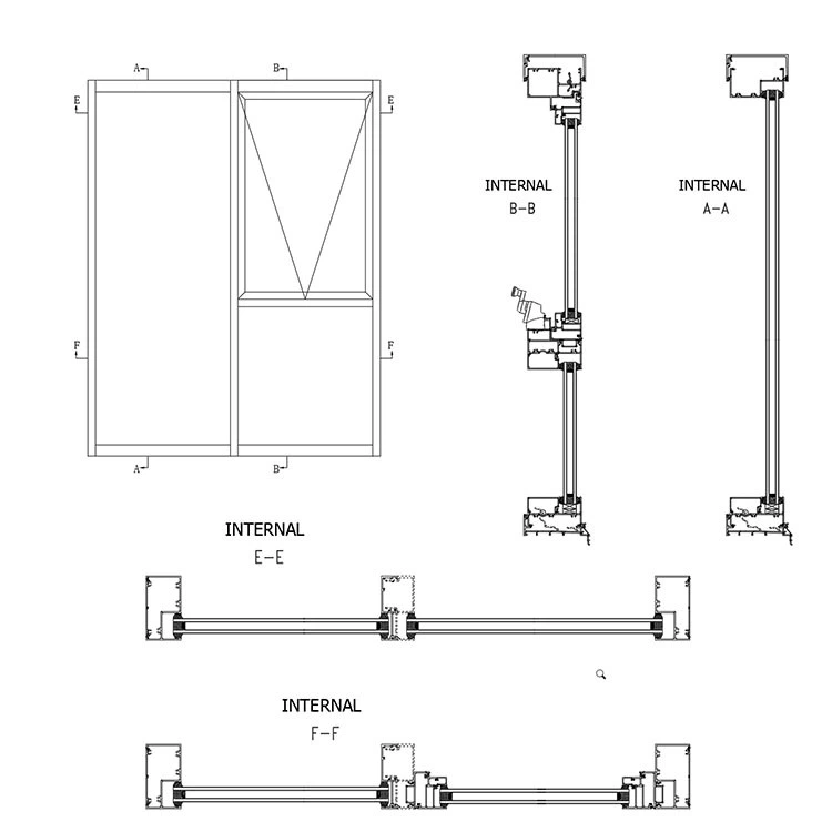
Чертеж на структурата
Система за стена на прозорците на GYA100 Series

Производствена обработка

Опаковка и пратка

Често задавани въпроси
В: Защо 2,0 мм дебелина на алуминий е важна?
A: По -тънкият алуминий може да се огъва или отклонява повече при натоварване на вятъра или с голямо стъкло . 2.0 mm дава превъзходна коравина и здравина - тя обработва по -големи товари, поддържа по -големи стъклени палове сигурно и гарантира, че системата остава права и вярна в продължение на десетилетия ., това е белег на качество .
В: Как да избера правилното стъкло?
A: It depends on your priorities: Energy saving (Low-E is king), Sound reduction (Laminated helps), Safety/Security (Tempered or Laminated), Solar heat control (Low-E coatings, tints), Budget, and the local climate. We can advise based on your project location and goals.
В: Каква е разликата между стената на прозореца и стената на завесата?
A: Главно там, където седят на подовата плоча . стените на прозореца седят между плочите (поддържани на ръбовете на плочата отгоре и отдолу) . Стените на завеси, висят извън плочите . стените на прозореца често правят детайлите на плочата по -проста .}
Популярни тагове: Фасада на стената на прозореца, производители на фасада на стената на прозореца, фабрика, Сграда на стената на прозореца, Транс на стената на прозореца, Оценки на стената на прозореца, Информираност за марката на стената на прозореца, Подстригване на стената на прозореца, Без рамка система за стена на прозорци
Един чифт
Изолирана стъклена завеса стенаСледваща
Голяма стена на прозорецаИзпрати запитване








